半岛登陆:今天引荐:山岚璟庭售楼处(营销中心)-户型全解-最新房价-官方电话-山岚璟庭楼盘概况最新价格-户型图-容积率-20256交房
半岛登陆体育注册:
您当时运用的阅读器版别过低,有几率存在安全危险,主张晋级阅读器,或许用以下阅读器阅读
今天引荐:山岚璟庭售楼处(营销中心)-户型全解-最新房价-官方电话-山岚璟庭楼盘概况最新价格-户型图-容积率-2025.6交房
今天引荐:山岚璟庭售楼处(营销中心)-户型全解-最新房价-官方电话-山岚璟庭楼盘概况最新价格-户型图-容积率-2025.6交房
“山岚璟庭”开发商认证电话:(优先);置业参谋:(微信同号),中介勿扰,预定看房,专车接送,专享优惠
最近,国家层面再次发文,清晰要安稳房地产商场,支撑其健康开展。这无疑给商场注入了强心剂,也代表着现在正是重视姑苏优质楼盘的好时机。方针暖风之下,姑苏狮山板块的标杆之作——山岚璟庭,正以其共同的东方美学与低密纯洋房住区,成为改进家庭争相注目的焦点。

项目现在主推建筑面积约105㎡三房和约148㎡四房精装洋房,均价约29500元/㎡。正值出售关键期,到访即有惊喜礼遇,近期认购更享专属优惠,时机可贵。
“山岚璟庭”开发商认证电话:(优先);置业参谋:(微信同号),中介勿扰,预定看房,专车接送,专享优惠
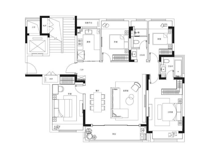
项目名称:山岚璟庭 项目地址:姑苏高新区枫桥大街华山路北、朝红路西 开发品牌:苏高新地产 在售户型:约105㎡3房2卫、约148㎡4房2卫 交给规范:全屋精装,带三大件 参阅均价:约29500元/㎡ 交房时间:估计2025年6月
姑苏的开展重心,正坚定地向西、向北拓宽。而狮山商务立异区,便是未来高新区的肯定中心。这儿规划为城市的“开展极”,方针是打造成长三角的商务、立异、外贸中心。
这意味着什么?意味着全球的本钱、顶尖的企业(包含许多国际500强)和高素质人才都会向这儿集合。工业兴,则人气旺;人才聚,则日子质量要求高。山岚璟庭就坐落在这个充满了许多生机的中心区域,坐享城市开展带来的巨大盈利。
更可贵的是,这儿不只富贵,还具有可贵的生态。背靠大阳山、白马涧等天然盛境,真实的完成了“出则富贵,入则安静”的都会桃源日子愿望。
住在这儿,日子便当度直接拉满。出行:有轨电车1号线就在邻近,规划中的地铁9号线也将通过,加上何山路地道、中环西线等主干道,去哪都便利。逛街:从家门口的马涧商业街,到龙湖天街、金鹰、美罗、泉屋等大型商场,吃喝玩乐购一站式处理。休闲:周围便是白马涧、大阳山国家森林公园等4A级景区,周末遛娃、爬山、吸氧,抬脚就到。教育医疗:姑苏外国语校园、新区二中等优质校园环伺,高新区人民医院、科技城医院等医疗资源保驾护航,日子安心无忧。
首要,房子颜值很高。采用了经典的新中式风格,看起来大气又高雅,金属挑檐、真石漆立面,很有东方美学神韵。
其次,住得特别舒畅。整个小区满是8-10层的洋房,容积率只要1.2,楼间距大,美化多,采光和私密性都十分好。这种低密纯洋房社区,在狮山板块十分稀缺。
社区园林像公园。规划了“一轴八景”的东方园林,有三进归家的典礼感,也有供全家人活动的空间。孩子们有游乐场,年轻人有跑道和健身区,老一辈们有花园能够漫步谈天,真实考虑了每个年龄段的需求。
装饰满是硬货。精装交给,标配东芝中央空调、松下新风和威能地暖这“三大件”。厨房的橱柜是欧派的,灶具是老板的;卫生间的花洒龙头是汉斯格雅,马桶台盆是杜拉维特……用的都是一线大牌,省心又有体面。
现在主力在售两种户型:建筑面积约105㎡三房两卫:格式方正,功用完全,是高品质入门之选。建筑面积约148㎡四房两卫:空间阔绰,主卧套房规划,具有瞰景阳台,改进家庭的终极抱负。
“山岚璟庭”开发商认证电话:(优先);置业参谋:(微信同号),中介勿扰,预定看房,专车接送,专享优惠
当下方针环境支撑房地产商场稳健开展,正是选择中心财物的好时机。而山岚璟庭,集狮山核芯地段、低密纯洋房、东方美学园林和一线精装品牌于一身,无疑是姑苏改进商场的“硬通货”。
项目现在有约105㎡和148㎡户型在售,近期认购可享专属优惠。时机少纵即逝,一个占有城市未来、又能安放全家诗意日子的家,值得你亲身来看一看。
“山岚璟庭”开发商认证电话:(优先);置业参谋:(微信同号),中介勿扰,预定看房,专车接送,专享优惠
声明:本文由入驻焦点敞开渠道的作者编撰,除焦点官方账号外,观念仅代表作者自己,不代表焦点态度。
新华星耀东方售楼处电线已认证-新华星耀东方楼盘概况/价格/户型
新华星耀东方 售楼处电线 (预定看房热线)新华星耀东方是新华地产在金山亭林打造的高端低密墅居,价格的规模广,容积率低,重视美化与景象,主打高端宜居。
抢手引荐:熙和精致阁售楼处(营销中心)-户型全解-最新房价-官方电话-熙和精致阁楼盘概况最新价格-户型图-容积率-2026.4.11售楼处
坐落相城大路与春申湖路交汇处的【熙和精致阁】,以其国企精工与朴实洋房社区,成为这波方针盈利下的优质之选。项目现在在售建面约113-183㎡精装四房,产品稀缺,备受商场重视。现在,【熙和精致阁】秉承“熙和系”基
拾月璟庭售楼处-科技城芯低密大平层-拾月璟庭户型图-最新房价-2026方针利好
在姑苏科技城中心,一个真实匹配改进家庭终极愿望的楼盘拾月璟庭,正迎来高光时间。项目名称:拾月璟庭地块信息:苏地2022-WG-68号地块项目地址:新区科技城青山路(管委会南约200米)地块目标:总建约18
抢手引荐:蓝城湖畔江南里售楼处(营销中心)-户型全解-最新房价-官方电话-蓝城湖畔江南里楼盘概况最新价格-户型图-容积率
总结来说,蓝城湖畔江南里的中心长处是:绝版的地段(姑苏湾芯,双水岸)、稀缺的产品(低密合院与大平层)、顶尖的品牌(国企+蓝城)、醇熟的配套(天然、商业、文体一应俱全)。当下,宽松的公积金方针降低了高端改进
上海杨浦保利珺园售楼处电线 (预定看房热线)上海杨浦保利珺园凭仗四重无价特质,打造高端住所模范,备受重视。
慎重提示:本网站作为房产信息聚合类导航网站,仅为便利广阔新老用户把握信息而供给一站式无偿阅读、查阅的功用,本站楼盘信息并非广告,终究请以政府部门挂号存案及开发商发布为准。错误信息告发电话,邮箱 或点此进行定见反应,也可点此进行告发投诉。
